Дмитрий Лужков Опубликовано 19 марта, 2013 Опубликовано 19 марта, 2013 Всем доброго времени суток.Столкнулся вот с такой проблемой. На днях высколчила ошибка Battery Charge Fault ну и соответственно на панели загорается лампа с изображением аккумулятора. в добавок отрубает печку и обогревы. я согрешил на генератор. Вчера отвез его в ремонт вместе с машиной. все работы по снятию установке тд и тп проводили они сами. в генераторе определили что обмотка замкнута. поменяли на новую плюс подшипники поменяли, все остальное по их словам в полном поряде было. Итог генер установили на машину, но ошибка как была так и осталась. тестером лазили обмеряли, заряд идет, все в норме вроде что то около 14,5V. на вопрос о причинах загорания ошибки только руками разводят. никто не может толком объяснить в чем проблема. единственное, что говорят нет напряжения на тонком проводке "розовом" на генераторе, там их два. этот розовый я так понимаю на приборку идет на лампочку через мозги? Прочитал кучу форумов. все ссылаются на генератор. но если он живой, в чем может быть пролема?Заранее спасибо за помощь, какой бы она ни была
lev5429 Опубликовано 19 марта, 2013 Опубликовано 19 марта, 2013 если все в норме, то через несколько заводок ошибка уйдет сама, либо стереть ее сканером
Дмитрий Лужков Опубликовано 19 марта, 2013 Автор Опубликовано 19 марта, 2013 сегодня после езды ошибка ушла. но вот недавно ходил к машинке, заводил. все тоже. опять она появилась может там еще реле какое то стоит и оно барахлит?
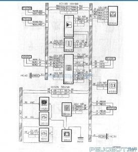
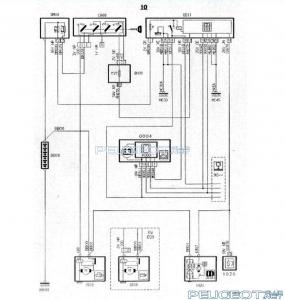
lev5429 Опубликовано 19 марта, 2013 Опубликовано 19 марта, 2013 (изменено) давай DAM или VIN, выложу схему Изменено 19 марта, 2013 пользователем lev5429
Дмитрий Лужков Опубликовано 19 марта, 2013 Автор Опубликовано 19 марта, 2013 давай DAM или VIN, выложу схему VIN VF38BRHZE81028563
Дмитрий Лужков Опубликовано 20 марта, 2013 Автор Опубликовано 20 марта, 2013 всем спасибо за помощь. оказалось дело в проводе 1087, который идет от гена на блок BSI (обрыв) поэтому он и не мог считать что ген работает. Протянул новый провод, ошибка исчезла
Рекомендуемые сообщения
Для публикации сообщений создайте учётную запись или авторизуйтесь
Вы должны быть пользователем, чтобы оставить комментарий
Создать аккаунт
Зарегистрируйте новый аккаунт в нашем сообществе. Это очень просто!
Регистрация нового пользователяВойти
Уже есть аккаунт? Войти в систему.
Войти